Двоконтурний конденсаційний котел 25 кВт Viessmann Vitodens Classic тип BPKB-25 (3205004)
- Безготівковий розрахунок з ПДВ
- Офіційна гарантія від виробника
- Обмін або повернення протягом 14 днів
- Нашим транспортом по Києву
- Україною транспортними компаніями
- Самовивіз зі складу
Увійдіть в обліковий запис, щоб ми могли повідомити вам про відповідь
Детальний опис
Vitodens Classic BPKB-25 - компактний настінний газовий конденсаційний котел для опалення та ГВП у квартирах/будинках (новобудови/модернізація). Ефективність до 108% (Hs), низька висота монтажу для заміни старих котлів, комфорт ГВП з standby (13,26 л/хв при ΔT=30K), довговічний теплообмінник Inox-Radial, пальник MatriX-Plus для чистого згоряння, просте керування, низький шум (від 33,4 дБ). Готовий до 20% водню (H2 Ready). Економить енергію до 70% на насосі, спрощує монтаж, підвищує комфорт.

Особливості та переваги котлів Vitodens Classic BPKB-25:
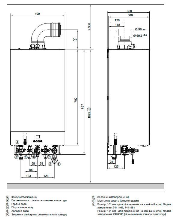
- Компактність (700x400x300 мм) та низька висота монтажу: Розміри котла дозволяють монтувати його в нішах або шафах, без необхідності у бічному доступі для обслуговування, що спрощує інтеграцію в існуючі системи.
- Ефективність 98% (Hs, клас A), ηS до 92%: Знижує витрати на паливо та викиди, вирішує високі енерговитрати.
- Теплообмінник Inox-Radial з нержавіючої сталі та гарантією 10 років: Стійкий до агресивних середовищ та корозії, що знижує ризики аварій та підвищує надійність системи.
- Пальник MatriX-Plus (модуляція 1:5, пневморегулювання): Тихий, низький викид NOx (клас 6), стабільне згоряння. Автоматичне регулювання потужності підлаштовується під реальні потреби, забезпечуючи рівномірне нагрівання та запобігаючи частим включенням/вимкненням, що продовжує термін служби.
- Енергоефективний насос (EEI ≤0,20, споживання 2-60 Вт): Оптимізує енергоспоживання (до 76 Вт макс.).
- Низький шум (33,4-53,1 дБ): Установка у житлових зонах без дискомфорту.
- Комфорт ГВП з standby (29,1 кВт, 10-60 ° C): Миттєва подача води, вирішує затримки. Ідеально для сімей із високим споживанням, без додаткових баків.
- Доступ спереду: Полегшує обслуговування (700 мм вільного простору спереду).
Система керування котлом:
- Проста система управління з РК-дисплеєм та кнопками для налаштування опалення та ГВП.
- Режими: погодозалежна або постійна температура.
- Регулювання насоса по ШИМ.
Система сумісна з протоколами OpenTherm для інтеграції з розумним будинком, а енергозберігаючий режим знижує споживання standby до мінімуму. Загалом управління поєднує надійність механічних елементів з цифровими можливостями, роблячи експлуатацію інтуїтивною навіть для нефахівців.

Основні технічні дані:
- Потужність: 5-25 кВт (50/30 ° C), 4,5-22,7 кВт (80/60 ° C), до 28 кВт (ГВП).
- ККД: До 108% (Hs, клас A).
- Модуляція: 1:5.
- Теплообмінник: Нержавіюча сталь Inox-Radial.
- Пальник: MatriX-Plus.
- Розміри: 700x400x300 мм, вага 34 кг (без теплоносія).
- Насос: Енергоефективний (регулювання оборотів, 2-60 Вт).
- Витрата газу: 2,53 м / год.
- Тиск: опалення 3 бар, ГВП 10 бар.
- Конденсат: до 4,4 л/год.
Купити разом
Схеми


Характеристики
- Vitodens Classic
- газовий котел
- конденсаційний
- IPX4D
- білий
Енергоефективність
- 25 кВт
- 250 кв.м
- 108%
Робочі параметри котла
- 10 бар
- 20...60°С
- 82°С
Особливості конструкції котла
- 60/100 мм
- 3/4"
- турбований
- двоконтурний (опалення + ГВП)
- настінний
- електронний (автоматичний)
- коаксіальний
- два роздільних
- розширювальний бак
- циркуляційний насос
- захист від замерзання
- захист від перегріву
- підключення датчика зовнішньої температури
- управління погодозалежною автоматикою
Габарити
- 700 х 400 х 300 мм
- 34 кг
Гарантія
- 24 міс.
Відгуки
Відгуків не знайдено