Двоконтурний конденсаційний котел 24 кВт osch Condens 2500 W WBC 28-1 DC (7736901203)
- Безготівковий розрахунок з ПДВ
- Офіційна гарантія від виробника
- Обмін або повернення протягом 14 днів
- Нашим транспортом по Києву
- Україною транспортними компаніями
- Самовивіз зі складу
Увійдіть в обліковий запис, щоб ми могли повідомити вам про відповідь
Детальний опис
Конденсаційний газовий котел Bosch Condens 2500 W WBC 28-1 DC потужністю 24 кВт
Bosch Condens 2500 W WBC 28-1 DC є двоконтурним конденсаційним котлом потужністю 24 кВт, який призначений для опалення та гарячого водопостачання житлових приміщень. Це надійний та ефективний котел, здатний забезпечити теплом та гарячою водою для комфортного проживання будинок площею до 240 кв. м. Під час роботи котел використовує практично всю енергію від спалювання газу, що дає зменшення витрати енергоресурсу та призводить до зниження цін у рахунках за газ.
Bosch Condens 2500 W WBC 28-1 DC може бути підключений як до радіаторів опалення, так і до системи теплої підлоги. У конструкції котла вбудований захист від блокування, який запобігає заклиненню насоса та 3-х ходового клапана навіть при тривалому знаходженні пристрою в режимі очікування. У режимі очікування котел автоматично вмикає захист від замерзання котла, що дозволяє зберегти працездатність обладнання.
Для безпечної експлуатації в Bosch Condens передбачені датчики температури теплоносія та основного теплообмінника. При їх перегріванні система автоматично перекриє подачу газу та вимкне котел. Циркуляційний насос оснащений системою автоматичного відведення повітря для запобігання завоздушенню і порушення роботи. Вбудована система контролю наявності полум'я запобігає випадковому попаданню газу в приміщення. При згасанні вогню подача газу припиняється.
Переваги Condens 2500 W WBC 28-1 DC:
- Клас енергоефективності А.
- Просте керування.
- Компактний розмір та мала вага.
- Модульований газовий пальник (12,5% - 100%).
- Сучасний функціональний дизайн.
- Високоефективний циркуляційний насос.
- Наявність датчиків температури теплоносія та основного теплообмінника.
- Захист від блокування та заклинювання насоса.
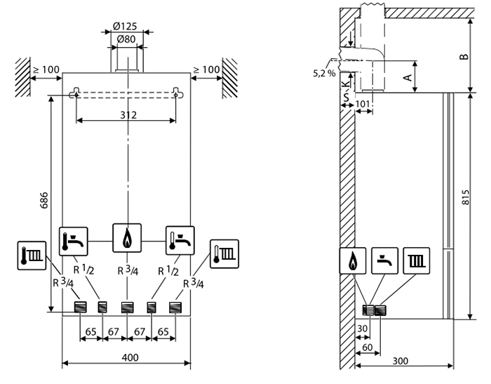
Схеми


Характеристики
- Condens
- газовий котел
- конденсаційний
- білий
Енергоефективність
- 24 кВт
- 240 кв.м
- 102%
Робочі параметри котла
- 35...60°С
- 82°С
Особливості конструкції котла
- 60/100 мм
- 80/80 мм
- 3/4"
- турбований
- двоконтурний (опалення + ГВП)
- настінний
- електронний (автоматичний)
Габарити
- 815 x 400 x 300 мм
- 35 кг
Гарантія
- від виробника
Відгуки
Відгуків не знайдено